Beyond Meat
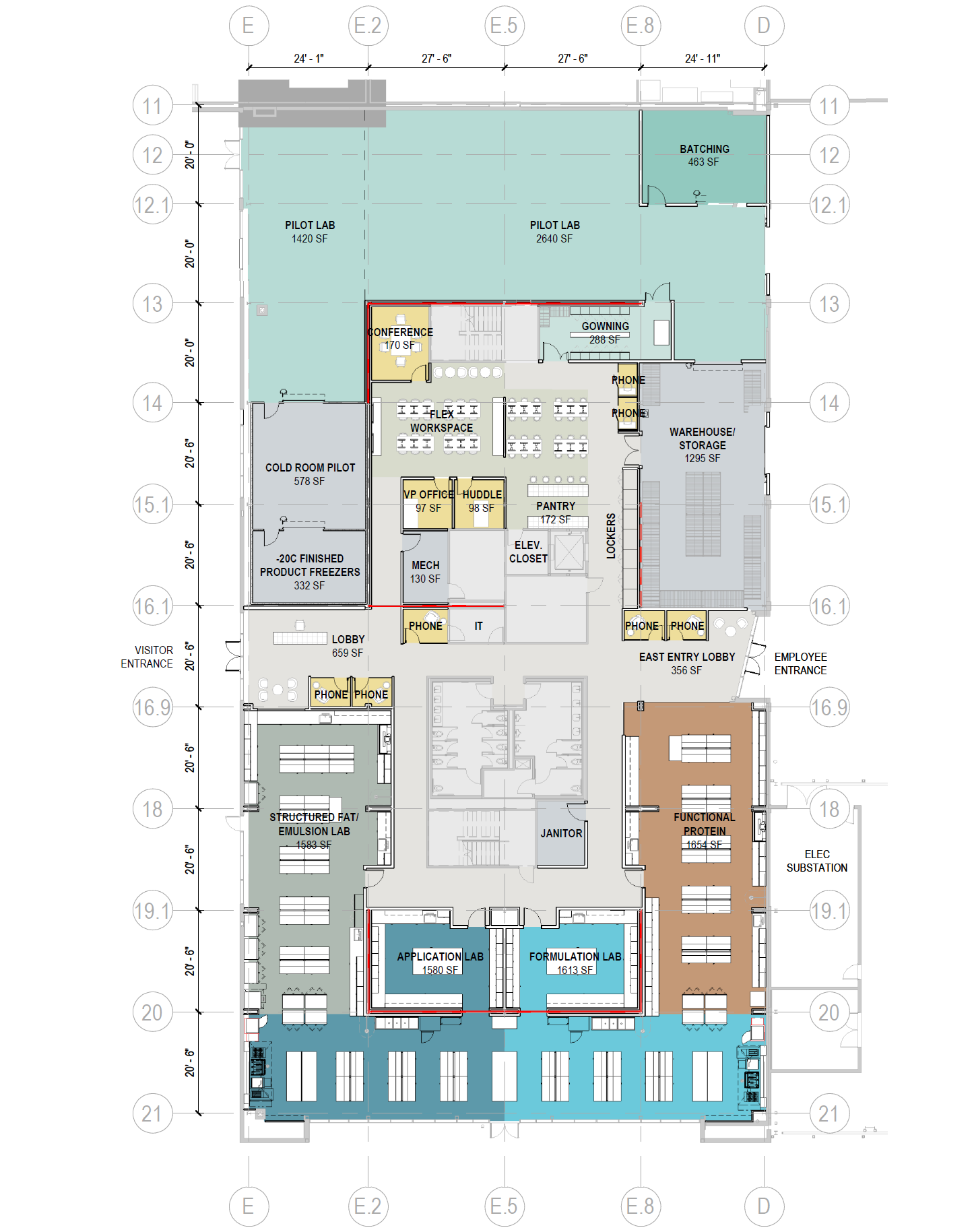
Company: Gensler Project Type: Lab Science, Workplace Construction Type: Tenant Improvement Description: The project consists of approximately 250,000 square feet of tenant improvements with approximately 125,000 square feet of office tenant improvements and approximately 125,000 square feet of Innovation/R&D labs, which includes analytics, fermentation, formulation, pilots, test kitchens, mixing, extruding, and refrigeration. My Role: Assist in consultant coordination and documentation of cd's for architecture and lab interiors for initial phases. Design and sd planning and coordination of lab interiors for joint venture phase Challenges: Adaptive reuse of sawtooth structure with tight floor to floor heights for laboratory facilities. Working with a client with little to no construction or design experience. Balancing exposing original structure and materials with providing clean lab environments.